SANTA

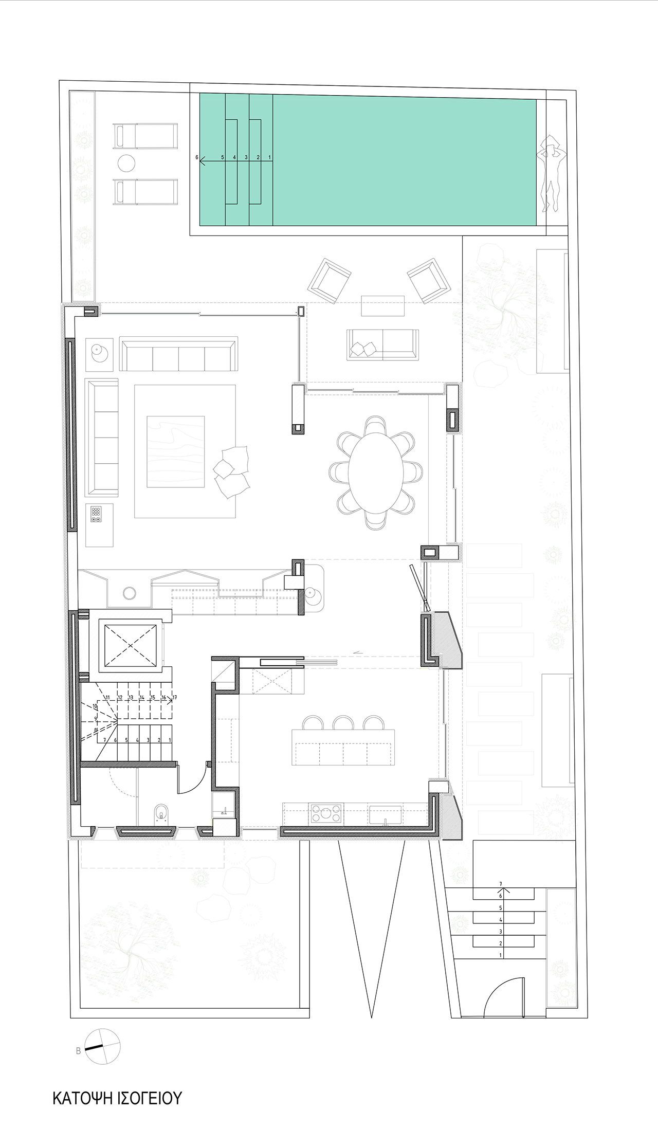
Family residence in the northern suburbs of Athens, 2023

DESIGN TEAM: Artemis Kopsida, Natalia Kokosalaki
PROJECT SIZE: 380m
RENDERS: Artemis Kopsida, Jason Vayanos
STRUCTURAL ENGINEER: Panos Chatzis
MECHANICAL ENGINEER: Dimitris Fotopoulos
PHASE: Under construction

A full description of this project will be published shorty!

Μια πλήρης περιγραφή του έργου θα δημοσιευθεί πολύ σύντομα!