BEND

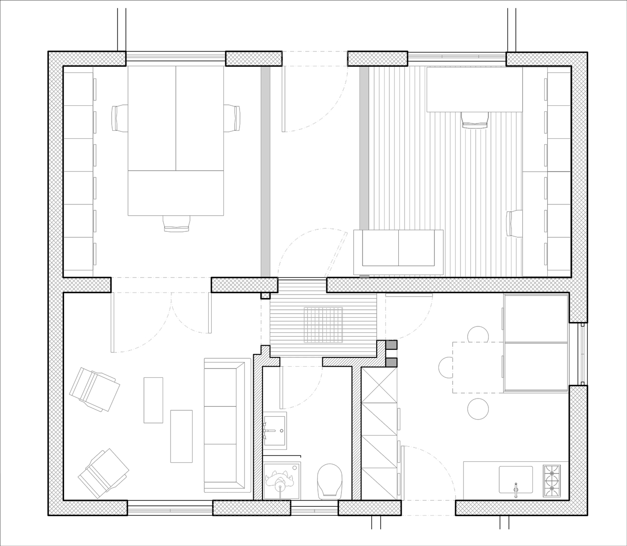
Office remodel in Kallithea, 2016

DESIGN TEAM: Natalia Kokosalaki, Eirini Mavrouka
PROJECT SIZE: 70m2
PHOTOGRAPHY: Dimitris Kleanthis

A full description of this project will be published shortly!

Μια πλήρης περιγραφή του έργου θα δημοσιευθεί πολύ σύντομα!